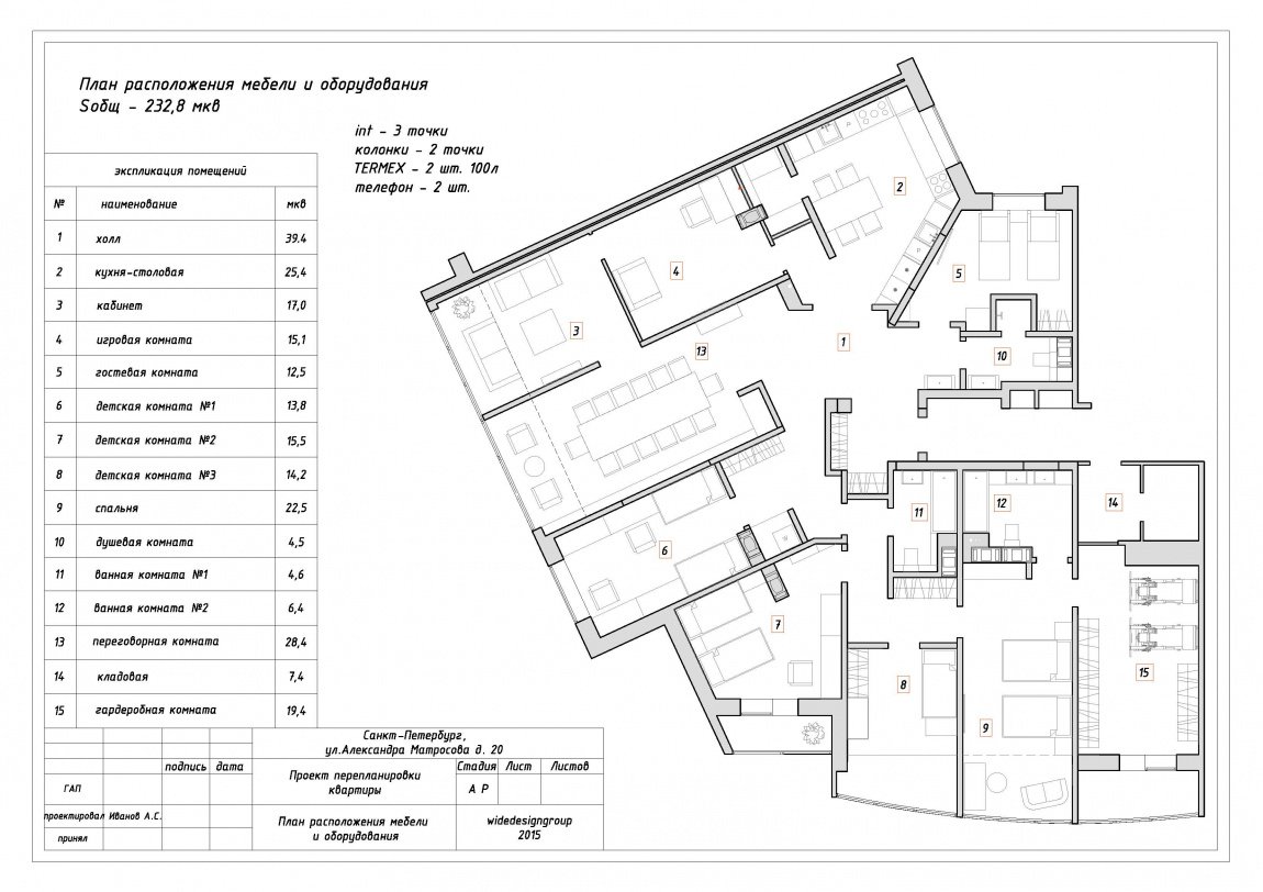
Проект для большой семьи по объединению четырех однокомнатных квартир в одну, реализовался благодаря классическим межкомнатным дверям Elegance Toskana. Выдерживая классический стиль интерьера были использована модеь Texture в белоснежной отделке.
Тип: Городская недвижимость
Стиль: Классический
Площадь: 206 кв.м.
Концепция проекта: Создать комфортную квартиру для большой семьи из 5 небольших.
Закрыть
Восстановление пароля
Закрыть
Регистрация дизайнера